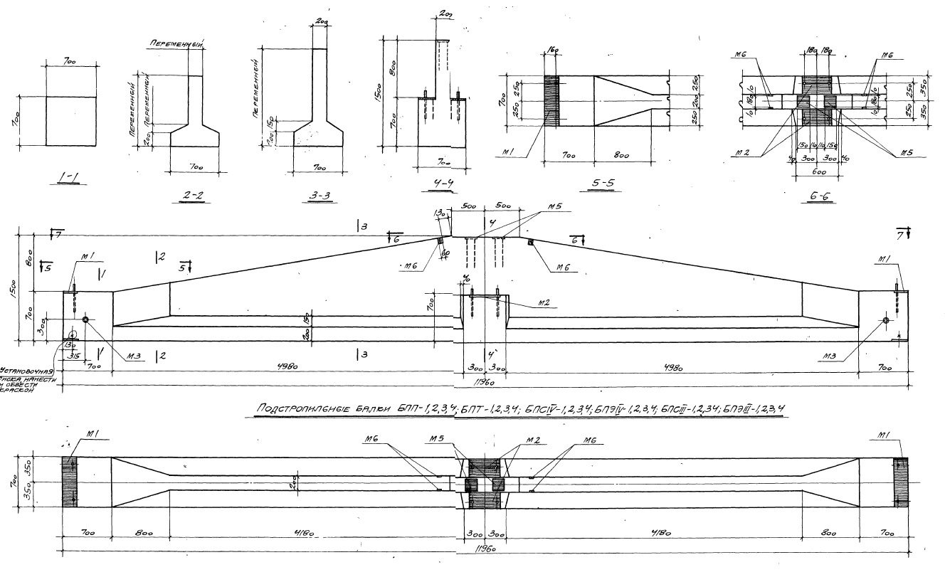
Балка подстропильная БПС IV-2 предназначена для использования в строительстве как несущий элемент кровли. Она обеспечивает опору для стропил и позволяет равномерно распределять нагрузку от кровельного покрытия. Балка изготавливается из железобетона, что обеспечивает ей высокую прочность и долговечность. БПС IV-2 имеет определенные габариты и характеристики, что делает ее идеальным выбором для строительства крыши любого типа и размера.









