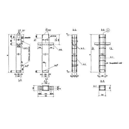
Колонна железобетонная КЛм 440 из серии 1.123 КР-1 предназначена для использования в строительстве как несущий элемент. Изделие обладает высокой прочностью и устойчивостью к воздействию различных нагрузок, что делает его идеальным для возведения зданий и сооружений различного назначения.









